Inicio
Proyectos
Equipamiento
Residencial
rehabilitaciones
Sobre Nosotros
Contáctenos
Identificarse
Contáctenos
Open toolbar
Accessibility Tools
Increase Text
Decrease Text
Grayscale
High Contrast
Negative Contrast
Light Background
Links Underline
Readable Font
Reset
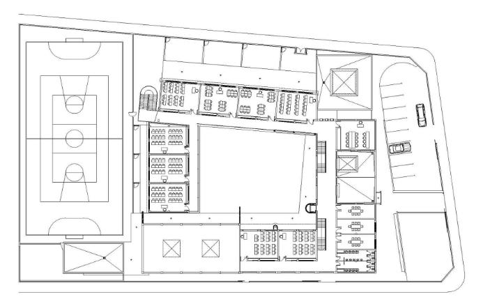
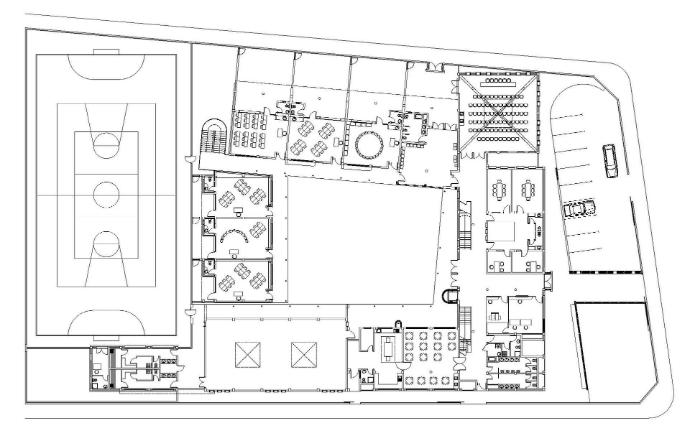
Ampliación de 3 Aulas de Infantil y 3 Aulas de Primaria. C.E.I.P El Puertito de Güimar.
Todos los blogs
Equipamiento
Ampliación de 3 Aulas de Infantil y 3 Aulas de Primaria. C.E.I.P El Puertito de Güimar.
Situación: C/ Almirante Churruca, nº 8, El Puertito de Güimar, T. M. de Güimar, Tenerife.
Arquitecto: José Ramón Rodríguez Fernández
Arquitecto colaborador: Ernesto Sanz de Galdeano
Proyecto: 2006
Terminación: 2012
Superficie: 486,90 m2
Promotor: CONSEJERÍA DE EDUCACIÓN, CULTURA Y DEPORTES, DIRECCION GENERAL DE CENTROS E INFRAESTRUCTURA EDUCATIVA – GOBIERNO DE CANARIAS
en
Equipamiento
Compartir
Nuestros blogs
Rehabilitacion
Equipamiento
Residencial
Archivar
- Todas las fechas
marzo 2019
septiembre 2014
octubre 2010
septiembre 2009
mayo 2006
mayo 2004