Situación: Avda. Mencey de Abona, Granadilla de Abona, Tenerife.
Arquitectos: José Ramón Rodríguez Fernández + Francisco J. Baute Dorta
Proyecto: 2017
Terminación: 2022
Superficie: 368,41 m2
Promotor: Privado
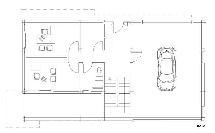
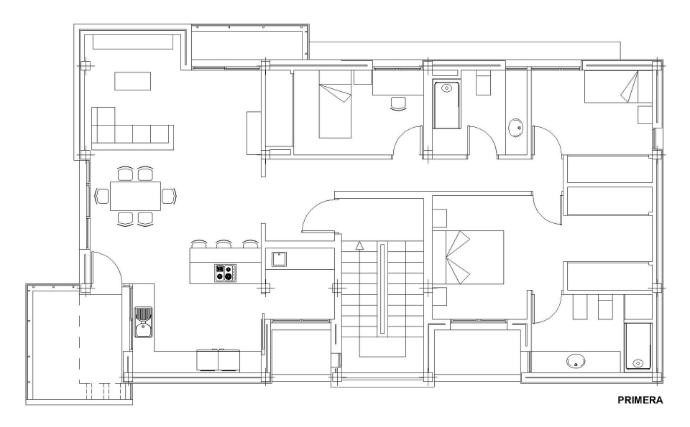
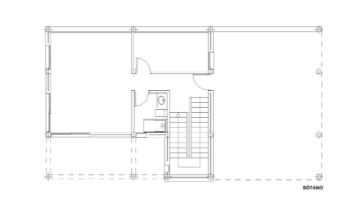
PLANOS
FOTOGRAFÍAS
FOTOGRAFÍAS



