Situación: Rambla 25 de Julio. Santa Cruz de Tenerife.
Arquitectos: José Ramón Rodríguez Fernández + Anatael N. Alayón Hernández.
Arquitectos Colaboradores: Francisco J. Baute Dorta + Pedro Apeles Díaz Ortiz
Proyecto: 2016
Terminación: 2017
Superficie: 150,62 m²
Promotor: Privado.
El presente proyecto, se realiza para la licitación de la explotación comercial de un quiosco-bar en la Rambla 25 de Julio de Santa Cruz de Tenerife, “QUIOSCO NUMANCIA”, cuya propuesta fue la ganadora.
Propuesta:
Memoria del proyecto
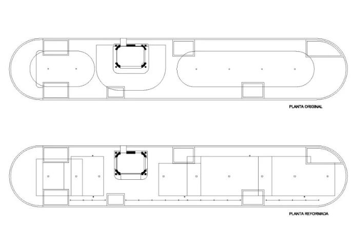
El quiosco actual conserva parte de su aspecto original, se compone de un único módulo compacto de planta rectangular con acceso directo desde el exterior y una superficie de 11,12 m².
La edificación, ejecutada en hormigón, revestida interiormente en parte con chapas de acero inoxidable por encima de la barra, azulejos y pintura en paramentos verticales y horizontales, el pavimento interior es de granito artificial. Todo el interior se encuentra en muy mal estado.
Exteriormente, conserva elementos decorativos pintados en columnas, pilastras y molduras en cornisa y vierteaguas. El quiosco se encuentra abierto por los cuatro lados, con grandes ventanales y barra para la atención al público en tres de ellos. Desde el pavimento hasta la barra y vierteaguas se dispone un aplacado irregular de piedra natural. El cerramiento de todos los huecos, incluido el acceso, se realiza con persianas metálicas enrollables. La altura de la barra fue modificada y elevada en alguna intervención, acortando las pilastras de las esquinas.
Cuenta con una visera metálica en las tres caras donde existe barra, instalada en la última remodelación del quiosco, en el año 1.996, según proyecto redactado por el aparejador D. Ricardo Miranda López.
Imagen primitiva del quiosco
La idea general que se propone es hacer una intervención lo más ligera posible, que integrándose con el entorno consiga unificar todo el ámbito, realzando a la vez la imagen del propio quiosco dentro del conjunto.
En primer lugar se consigue unificar el espacio existente en uno único y continuo. Es decir que las actuales: Zona de mesas 1, módulo central y zona de mesas 2, se conviertan en una única zona integrada bajo una marquesina longitudinal que configura toda a rambla como un único espacio de estancia. La marquesina en sí, que se desplegará bajo las copas de los árboles tiende a ser lo más etérea y ligera posible, convirtiéndose en un elemento que busca mimetizarse en el entorno natural que la rodea. Sus propias formas onduladas, que parecen querer flotar sobre la rambla, al contar solo con el apoyo puntual de los pilares centrales, se asemejan a una forma boscosa, donde las ondas entrelazadas entre si vendrían a ser el follaje y los pilares responderían a los troncos que la ligan al suelo.
En segundo lugar se plantea la oportunidad de recuperar y realzar la imagen relevante del quiosco Numancia dentro del propio conjunto, para ello se aprovecha la nueva marquesina como eje unificador de la intervención, integrando la estructura del quiosco con la estética de la rambla y el parque García Sanabria, donde las ondulaciones nos evocan las formas orgánicas del propio parque. La marquesina cumple también su función a la hora de realzar el quiosco puesto que se interrumpe justo antes de llegar al mismo y en ningún momento intersecta visualmente con el modulo central, recortándose a escasos centímetros y convirtiéndose en un marco perfecto del elemento arquitectónico, destacando los valores del quiosco como elemento singular y enmarcándolo. Pensando también en el realce del protagonismo del quiosco dentro del conjunto se propone recuperar la imagen primitiva del mismo en la medida de lo posible. Para ello se conservará la estética original del elemento arquitectónico, recuperando las molduras de la barra en todo el perímetro y bajando la altura de las barras en las esquinas con lo que, se descubrirán de nuevo las basas originales de las pilastras de las esquinas, pilastras que con ello volverán a tener su altura primigenia. Enfatizando con todo ello el volumen del quiosco y poniendo en valor los elementos originales con los que todavía cuenta.
Las dos premisas de la propuesta se interrelacionan a la hora de alcanzar los objetivos fijados en este proyecto. Por un lado las cubiertas ligeras están lo suficientemente integradas como para no restar relevancia al quiosco, más bien todo lo contrario, lo enmarcan y lo realzan en su singularidad. Y por otro lado al conseguir integrar todas las zonas en un único ámbito al cubierto de la marquesina configurando un conjunto mimético con el entorno verde del parque y la rambla en el cual destaca aún más el quiosco una vez se haya recuperado su aspecto original.
La zona de intervención es un espacio singular y emblemático de la ciudad, durante generaciones ha sido punto de encuentro muy querido de los ciudadanos.
Planos estado original y reformado
Estado Original:
Reformado:






















































